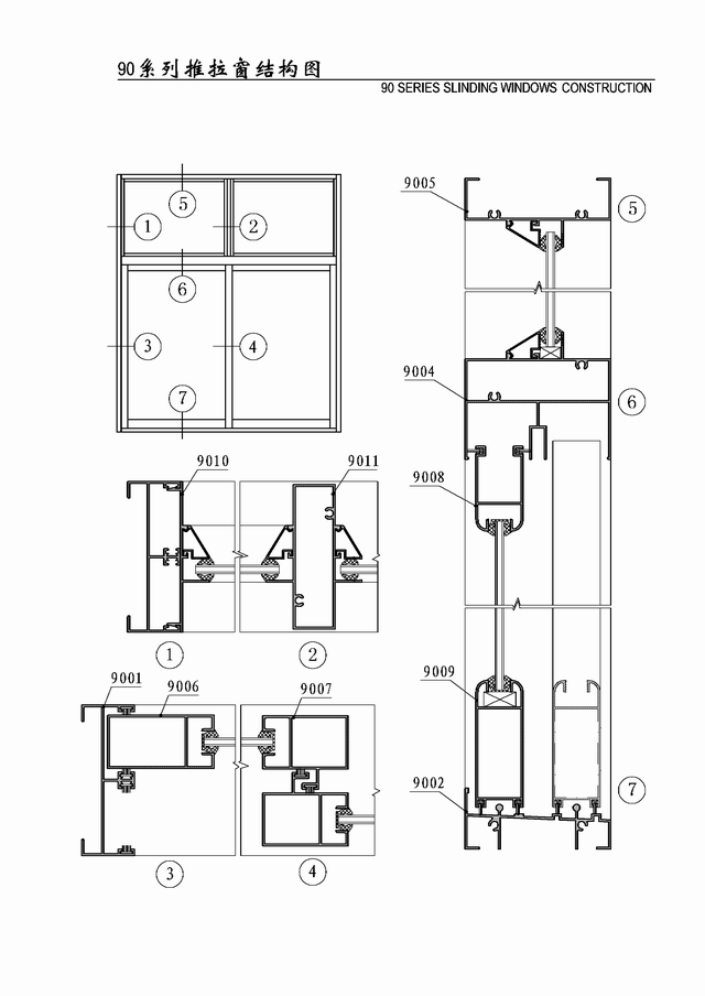
H95-90系列推拉窗图集  

相关产品图片