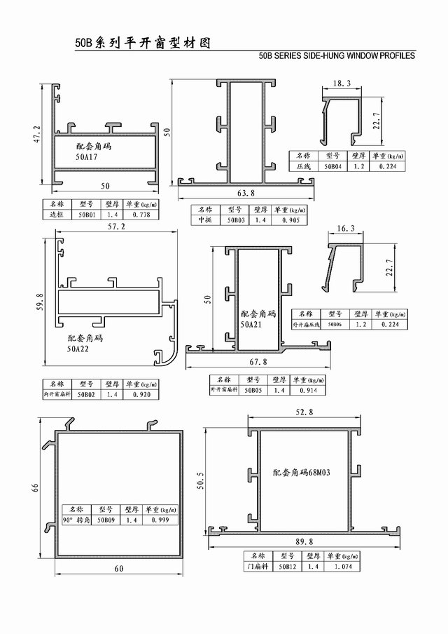
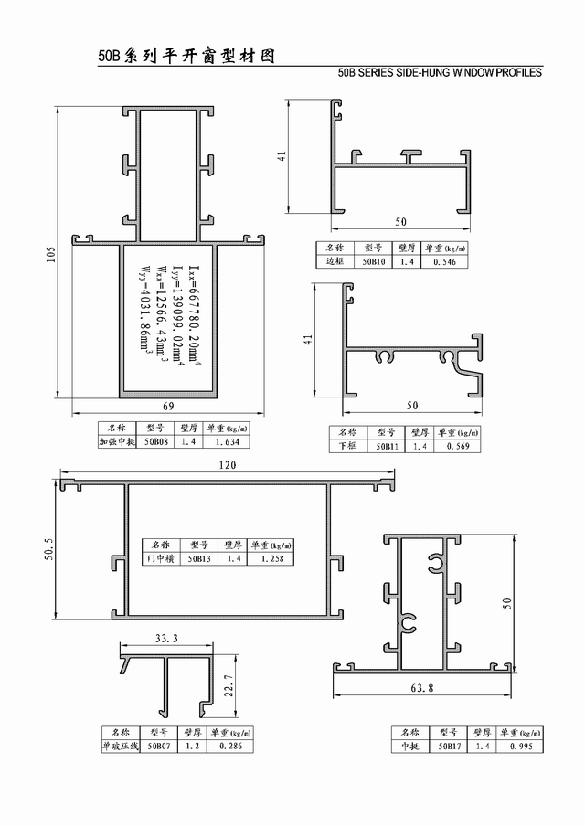
50B系列平开窗图集  

相关产品图片