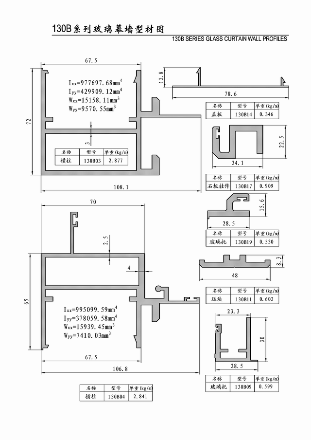
130B系列玻璃幕墙图集  

相关产品图片