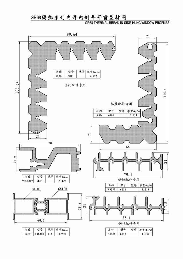
GR68隔热系列内开内倒平开窗图集  

相关产品图片