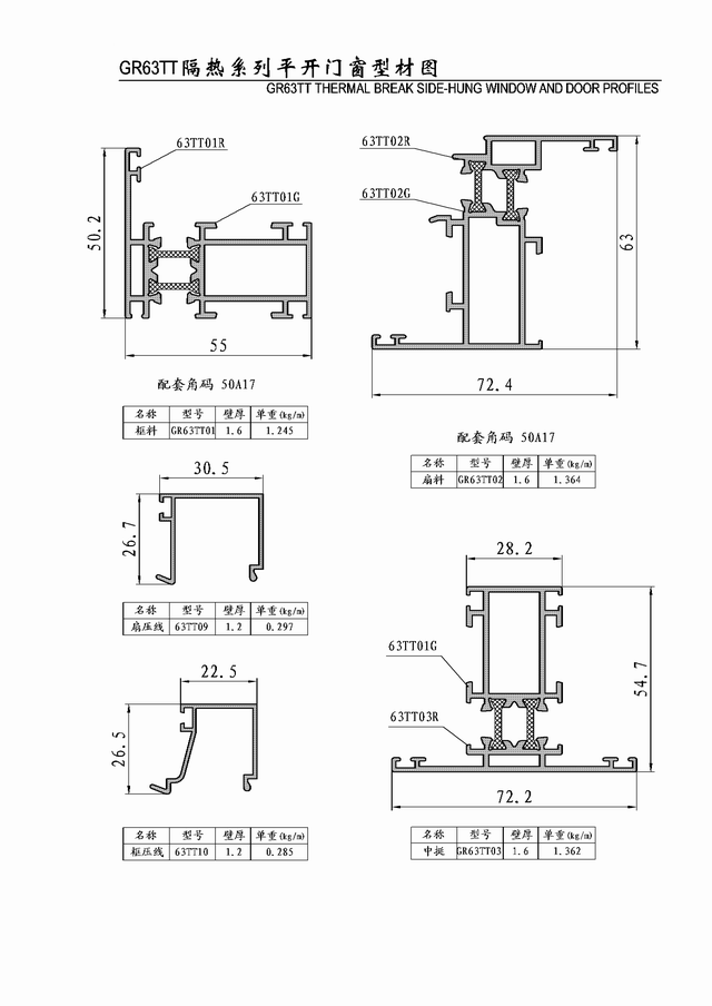
GR63TT隔热系列平开门窗图集  

相关产品图片